Community Hub Project

Community Hub schematic design

Community Hub Fraser Street elevation
Community Hub Fraser Street elevation
Community Hub schematic design
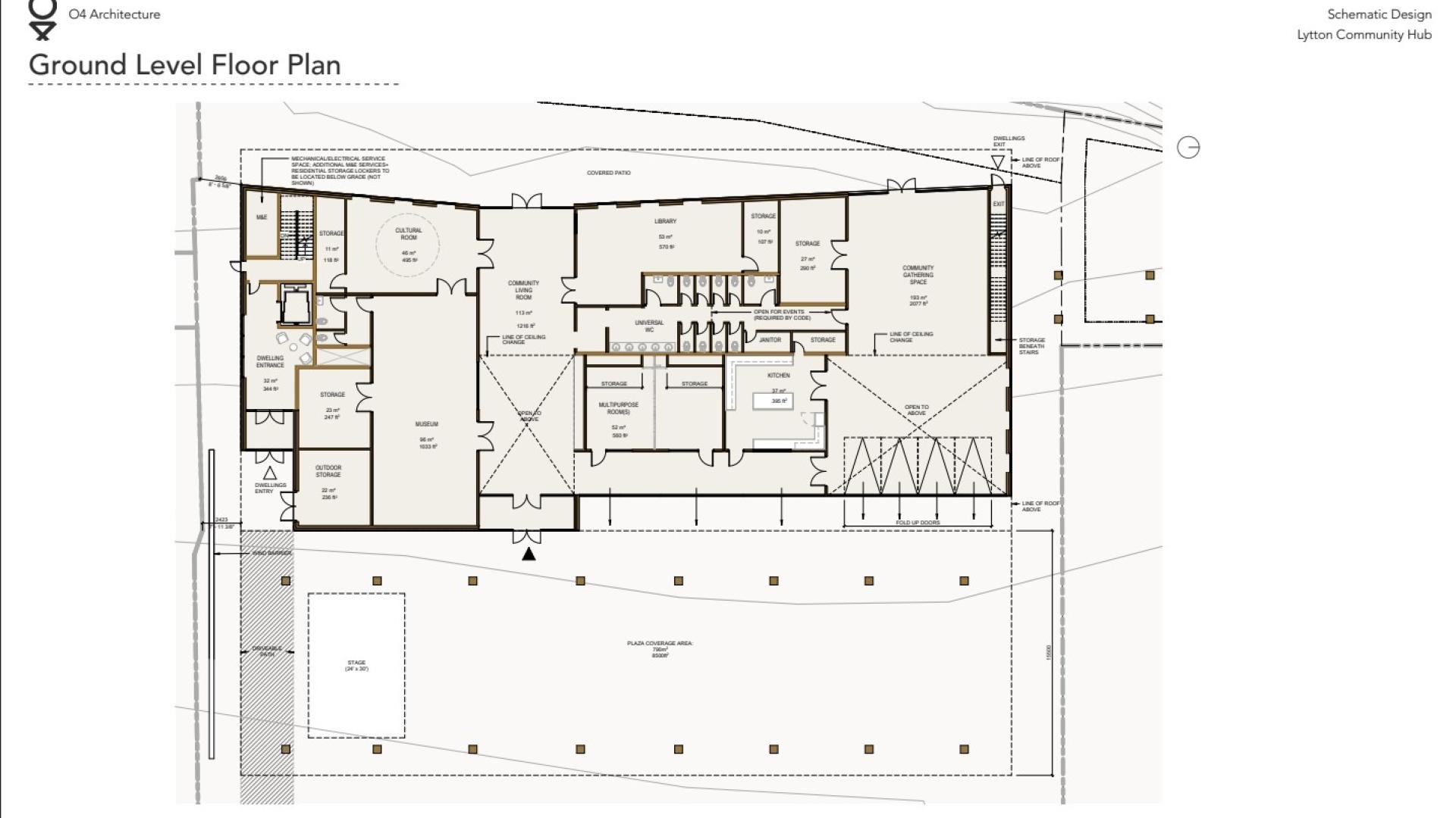
Community Hub schematic design lower floor plan
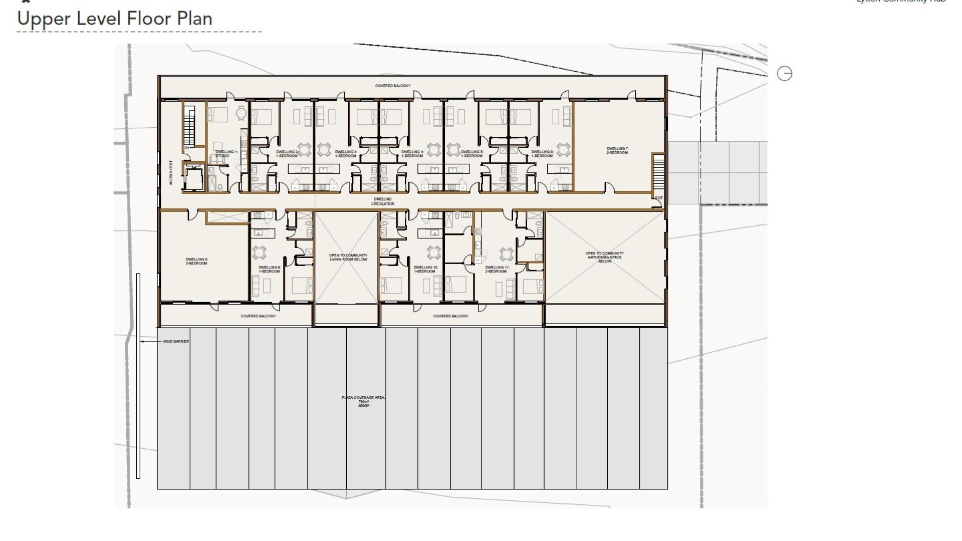
Community Hub schematic design upper floor plan
Community Hub schematic design upper floor plan
Fraser Street elevation
Community Hub Fraser Street elevation

Project vision

Located in the Village of Lytton at 320, 400 and 420 Fraser Street, the Community Hub is envisioned as an accessible and inclusive gathering space for residents of the Village of Lytton and surrounding areas.

The Lytton Community Hub will be a multi-purpose community centre providing spaces and services to support the needs of community members living in Lytton and the surrounding regions. The project is supported by federal Green and Inclusive Community Buildings funding and will be designed to FireSmart and Net Zero Carbon standards.

The Community Hub will replace community infrastructure lost during the devastating 2021 fire that destroyed 90 per cent of the structures in downtown Lytton. 


Project newsletter

Read the latest Community Hub project updates:


Schematic design shared with community

At the Council meeting on February 24, 2026,  and open house on February 25, 2026, the Village shared an overview of the Community Hub Project and community engagement for the project.

The architects for the Community Hub Project, O4 Architecture, also presented the schematic design. The design incorporates input received from the community through a number of different initiatives and shows how the different rooms and future uses fit together on the Fraser Street site (along with the pool, which is being designed separately). 

The architects for the Community Hub Project, O4, will be presenting the schematic design for the building at the Regular Council Meeting on February 24. This is an exciting milestone for the project!
 


Image
Community Hub engagement August 30, 2025.

Community engagement

The following are some of the Village’s previous community engagement activities: 

  • From the end of October to the start of November 2025, Nlaka'pamux members who couldn't participate in an engagement session were invited to complete an online survey.
  • October 2025, engagement sessions were held across Siska, Skuppah, Kanaka Bar, Nicomen, and at the Lytton First Nation Career Fair to gather community input on the future Community Hub. Each session offered thoughtful ideas about how the Hub can reflect local culture, connection, and wellbeing. Communities emphasized values such as inclusion, respect, health, and happiness — guiding how the Hub should serve everyone across generations. A deep theme of truth and reconciliation was shared throughout, calling for the Hub to help rebuild relationships, honour history, and support healing.
  • The Village and the architecture team, O4A, ran a survey from August 30 to September 30, 2025 inviting feedback from anyone who plans to use the Community Hub in the Village of Lytton in the future. Input from the survey and community engagement sessions in the Village and surrounding Nlaka'pamux communities will help to shape the uses and O4A's design of the Community Hub.
  • On August 30, 2025, the O4A architecture team hosted a table with interactive activities at the Public Works Building & Village Open House during the Lytton River Festival. 
  • In January 2025, the Village hosted an open house and community survey about the Community Hub project. Learn what we heard.
  • As recommended by the Project Advisory Committee, the Village posted a position for a Cultural Advisor (or Cultural Advisors) to work with the group to incorporate Nlaka’pamux history, traditions, language and culture into the Community Hub project. 
  • The Village of Lytton convened a Project Advisory Committee, including representatives from the Village of Lytton, Thompson-Nicola Regional District, and neighbouring First Nations. This group was formed to ensure everyone has a seat at the table and feels a sense of ownership and inclusion in the project.
  • In summer and fall 2023, the Village hosted a community meeting and ran a survey to receive input on community priorities for infrastructure rebuilding.
  • The Village worked in collaboration with neighbouring Lytton First Nation and Skuppah Nation on the GICB funding application. 

Project milestones and updates

Read the latest project updates:

February 2026 The schematic design for the Community Hub shared with Council and at an open house.
December 2025 Council directed staff to engage a commercial pool contractor for construction of the Community Hub pool in partnership with a qualified builder (recommended as Blue Collar Modular) subject to confirmation from the federal funders.
October 2025 Council approved an increase in fees to the architecture firm O4A based on two changes to the project since the initial schedule for their work was developed: the specific lots to be included in the project design and the extent and scheduling of community consultation.
September 2025 The Village issued a request for proposals for the design and construction of the outdoor pool, including a 25 m x 6 lane area to be built adjacent to the new Community Hub space.
July 2025 The Village introduced Amhani (Hani) Jones, the Engagement Manager for the project.
June 2025 Council authorized the Chief Administrative Officer to proceed with negotiating a contract with O4 Architecture Ltd. for the design of the Community Hub
May 2025 The Village shared a Community Hub project update.
February 2025

Council endorsed the project.

The federal Ministry of Housing, Infrastructure and Communities confirmed an investment of over $25 million for the Community Hub project through the Green and Inclusive Buildings Program.

January 2025 The Village shared an overview of the project and upcoming engagement opportunities.
August 2024 The Village of Lytton applied for funding through Infrastructure Canada’s Green and Inclusive Community Buildings (GICB) Program for a Community Hub. 

This federal program funds inclusive community, culture, and recreation centres that are accessible, open to the public, climate-resilient, and built to Net Zero carbon standards.

Components

The Community Hub could include the following components:

  • Museum
  • Library (if the Thompson–Nicola Regional District decides to rebuild a library in Lytton)
  • Sunken hall
  • Kitchen and multipurpose / flex space
  • Outdoor, covered market / event space
  • Swimming pool

Community benefits

The multi-purpose Community Hub will support the following benefits for residents of Lytton and surrounding areas:

  • Community gathering
  • Reconciliation and inclusion
  • Arts, recreation, and culture
  • Economic resiliency and tourism
  • Emergency preparedness and response
  • Climate resiliency

Funding

The Ministry of Housing, Infrastructure and Communities has confirmed an investment of over $25 million for the Community Hub project through the Green and Inclusive Buildings Program.

This project funding falls under the $64 million commitment from the federal government in June 2022 towards rebuilding Lytton through the construction of net-zero and fire-resistant public buildings. 

Green infrastructure funding - federal government